会社概要
サービス
施工図作成代行
申請書類作成代行
制作実績
S造
RC造
88関係
採用情報
問い合わせ
会社概要
サービス
施工図作成代行
申請書類作成代行
制作実績
S造
RC造
88関係
採用情報
問い合わせ
Home
-
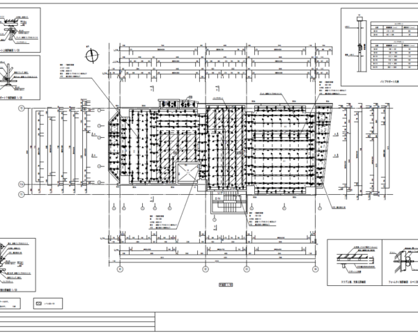
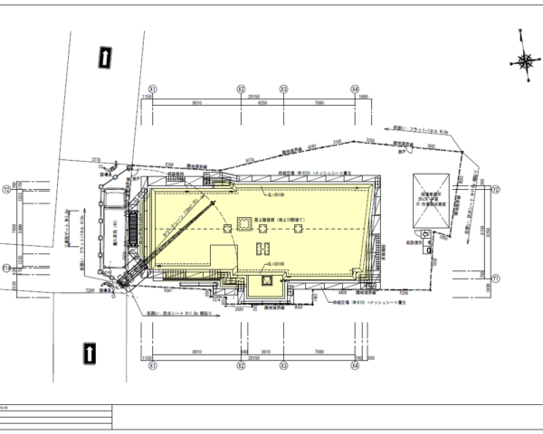
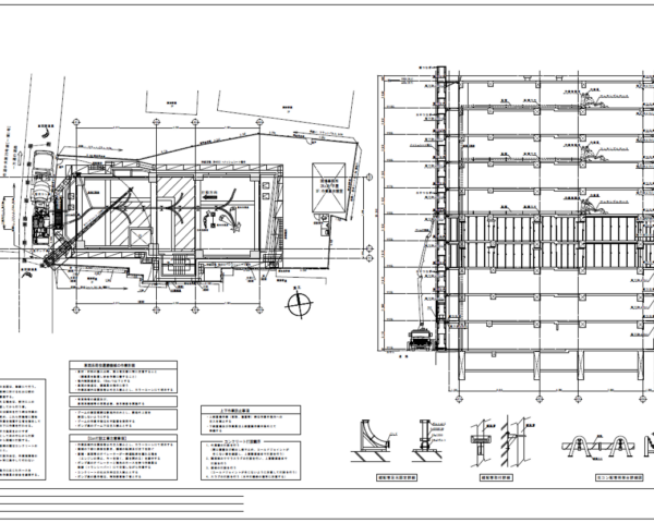
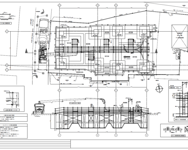
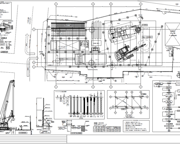
制作実績:88関係
制作実績・88関係
その他の制作
実績を見る
S造
RC造
〒232-0012
神奈川県横浜市港南区上永谷1-1-18 3F
TEL : 045-883-4695
FAX : 045-513-1536
会社概要
サービス
・施工図面作成代行
・申請書類作成代行
制作実績
・S造
・RC造
・88関係
お問い合わせ
採用情報
プライバシーポリシー
利用規約
トップへ戻る
@all right reserved by
株式会社カンガルーポケット